0120-38-8127

受付時間:8:30〜17:30(土日祝日は除く)

広島県の
貸事務所(賃貸事務所)・賃貸オフィス物件一覧

検索結果282(108棟)
5
5

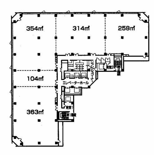
WAKO広島駅前ビル

お問い合わせ番号:010-41377

広島駅地区のWAKO広島駅前ビル 外観1
広島駅地区のWAKO広島駅前ビル 平面1
広島駅地区のWAKO広島駅前ビル 外観1
広島駅地区のWAKO広島駅前ビル 平面1
掲載面積44坪
住所
広島市南区京橋町1-3
最寄駅
広島駅 ( JR ) 南口 5分
竣工
1973年10月
規模
地上8階/地下1階建
階数 面積 賃料(共益費含) 預託金 入居可能日 一括請求リスト
2階 44.93坪(148.53㎡) 449,300円10,000円/坪 相談相談/坪 2026.04上旬
階数
2階
面積
44.93坪(148.53㎡)
賃料(共益費含)
449,300円 10,000円/坪
預託金
相談 相談/坪
入居可能日
2026.04上旬
一括請求リスト

テリハ広島

お問い合わせ番号:010-05629

広島駅地区のテリハ広島 外観1
広島駅地区のテリハ広島 平面1
広島駅地区のテリハ広島 外観1
広島駅地区のテリハ広島 平面1
掲載面積31坪~59坪
住所
広島市南区西荒神町1-8
最寄駅
猿猴橋町駅(広島電鉄) 出入口1 3分
広島駅(JR) 南口 7分
竣工
2001年 3月
規模
地上16階/地下1階建
階数 面積 賃料(共益費含) 預託金 入居可能日 一括請求リスト
3階 40.21坪(132.926㎡) 522,730円13,000円/坪 5,162,964円128,400円/坪 即日
4階 59.38坪(196.298㎡) 771,940円13,000円/坪 7,624,392円128,400円/坪 即日
4階 31.76坪(104.992㎡) 412,880円13,000円/坪 4,077,984円128,400円/坪 即日
階数
3階
面積
40.21坪(132.926㎡)
賃料(共益費含)
522,730円 13,000円/坪
預託金
5,162,964円 128,400円/坪
入居可能日
即日
一括請求リスト
階数
4階
面積
59.38坪(196.298㎡)
賃料(共益費含)
771,940円 13,000円/坪
預託金
7,624,392円 128,400円/坪
入居可能日
即日
一括請求リスト
階数
4階
面積
31.76坪(104.992㎡)
賃料(共益費含)
412,880円 13,000円/坪
預託金
4,077,984円 128,400円/坪
入居可能日
即日
一括請求リスト

交通会館ビル

お問い合わせ番号:010-05984

広島駅地区の交通会館ビル 外観1
広島駅地区の交通会館ビル 平面1
広島駅地区の交通会館ビル 外観1
広島駅地区の交通会館ビル 平面1
掲載面積15坪
住所
広島市東区上大須賀町1-16
最寄駅
広島駅(JR) 新幹線口 6分
広島駅(広島電鉄) 9分
竣工
2000年 9月
規模
地上7階建
階数 面積 賃料(共益費含) 預託金 入居可能日 一括請求リスト
7階 15.3坪(50.579㎡) 140,730円9,198円/坪 1,321,553円86,376円/坪 2026.04上旬
階数
7階
面積
15.3坪(50.579㎡)
賃料(共益費含)
140,730円 9,198円/坪
預託金
1,321,553円 86,376円/坪
入居可能日
2026.04上旬
一括請求リスト

アクティブインターシティ広島 オフィス棟

お問い合わせ番号:010-06389

広島駅地区のアクティブインターシティ広島 オフィス棟 外観1
広島駅地区のアクティブインターシティ広島 オフィス棟 平面1
広島駅地区のアクティブインターシティ広島 オフィス棟 外観1
広島駅地区のアクティブインターシティ広島 オフィス棟 平面1
掲載面積42坪
住所
広島市東区若草町12-1
最寄駅
広島駅(JR) 新幹線口 4分
広島駅(広島電鉄) 7分
竣工
2010年 8月
規模
地上21階/地下1階建
階数 面積 賃料(共益費含) 預託金 入居可能日 一括請求リスト
7階 42.359坪(140.03㎡) 相談相談/坪 相談相談/坪 2026.05上旬
階数
7階
面積
42.359坪(140.03㎡)
賃料(共益費含)
相談 相談/坪
預託金
相談 相談/坪
入居可能日
2026.05上旬
一括請求リスト

広島産業文化センター

お問い合わせ番号:010-03089

その他広島市内の広島産業文化センター 外観1
その他広島市内の広島産業文化センター 平面1
その他広島市内の広島産業文化センター 外観1
その他広島市内の広島産業文化センター 平面1
掲載面積12坪~303坪
住所
広島市南区比治山本町16-35
最寄駅
南区役所前駅(広島電鉄) 2分
竣工
1990年 6月
規模
地上12階/地下1階建
階数 面積 賃料(共益費含) 預託金 入居可能日 一括請求リスト
7階 24.699坪(81.65㎡) 相談相談/坪 相談相談/坪 即日
9階 303.697坪(1,003.96㎡) 相談相談/坪 相談相談/坪 2026.04上旬
11階 12.611坪(41.69㎡) 相談相談/坪 相談相談/坪 2026.09上旬
階数
7階
面積
24.699坪(81.65㎡)
賃料(共益費含)
相談 相談/坪
預託金
相談 相談/坪
入居可能日
即日
一括請求リスト
階数
9階
面積
303.697坪(1,003.96㎡)
賃料(共益費含)
相談 相談/坪
預託金
相談 相談/坪
入居可能日
2026.04上旬
一括請求リスト
階数
11階
面積
12.611坪(41.69㎡)
賃料(共益費含)
相談 相談/坪
預託金
相談 相談/坪
入居可能日
2026.09上旬
一括請求リスト

和光楽々園ビル

お問い合わせ番号:010-03090

その他広島市内の和光楽々園ビル 外観1
その他広島市内の和光楽々園ビル 平面1
その他広島市内の和光楽々園ビル 外観1
その他広島市内の和光楽々園ビル 平面1
掲載面積30坪~45坪
住所
広島市佐伯区楽々園4-3-22
最寄駅
楽々園駅(広島電鉄宮島線) 2分
竣工
1991年 8月
規模
地上7階建
階数 面積 賃料(共益費含) 預託金 入居可能日 一括請求リスト
2階 30坪(99.174㎡) 180,000円6,000円/坪 900,000円30,000円/坪 入居日相談
6階 45.7坪(151.075㎡) 274,200円6,000円/坪 1,371,000円30,000円/坪 入居日相談
階数
2階
面積
30坪(99.174㎡)
賃料(共益費含)
180,000円 6,000円/坪
預託金
900,000円 30,000円/坪
入居可能日
入居日相談
一括請求リスト
階数
6階
面積
45.7坪(151.075㎡)
賃料(共益費含)
274,200円 6,000円/坪
預託金
1,371,000円 30,000円/坪
入居可能日
入居日相談
一括請求リスト

NTTクレド白島ビル

お問い合わせ番号:010-03123

その他広島市内のNTTクレド白島ビル 外観1
その他広島市内のNTTクレド白島ビル 平面1
その他広島市内のNTTクレド白島ビル 外観1
その他広島市内のNTTクレド白島ビル 平面1
掲載面積88坪
住所
広島市中区東白島14-15
最寄駅
白島駅(広島電鉄) 4分
新白島駅(広島高速交通アストラムライン) 南口 7分
新白島駅(JR) 南口 7分
竣工
1992年 4月
規模
地上14階/地下1階建
階数 面積 賃料(共益費含) 預託金 入居可能日 一括請求リスト
5階 88.32坪(291.968㎡) 相談相談/坪 相談相談/坪 即日
階数
5階
面積
88.32坪(291.968㎡)
賃料(共益費含)
相談 相談/坪
預託金
相談 相談/坪
入居可能日
即日
一括請求リスト

双葉ヒルズ横川駅前

お問い合わせ番号:010-40926

その他広島市内の双葉ヒルズ横川駅前 外観1
その他広島市内の双葉ヒルズ横川駅前 平面1
その他広島市内の双葉ヒルズ横川駅前 外観1
その他広島市内の双葉ヒルズ横川駅前 平面1
掲載面積26坪
住所
広島市西区中広町3-4-10
最寄駅
横川一丁目駅(広島電鉄) 9分
横川駅(JR) 南口 10分
竣工
1988年 3月
規模
地上7階建
階数 面積 賃料(共益費含) 預託金 入居可能日 一括請求リスト
2階 26.65坪(88.1㎡) 180,000円6,755円/坪 1,080,000円40,526円/坪 入居日相談
階数
2階
面積
26.65坪(88.1㎡)
賃料(共益費含)
180,000円 6,755円/坪
預託金
1,080,000円 40,526円/坪
入居可能日
入居日相談
一括請求リスト

太陽機工ビル

お問い合わせ番号:010-41218

その他広島市内の太陽機工ビル 外観1
その他広島市内の太陽機工ビル 平面1
その他広島市内の太陽機工ビル 外観1
その他広島市内の太陽機工ビル 平面1
掲載面積46坪
住所
広島市中区榎町10-16
最寄駅
十日市町駅(広島電鉄) 3分
本通駅(広島高速交通アストラムライン) 西1口 15分
竣工
1989年12月
規模
地上9階建
階数 面積 賃料(共益費含) 預託金 入居可能日 一括請求リスト
9階 46.45坪(153.554㎡) 300,000円6,459円/坪 900,000円19,376円/坪 即日
階数
9階
面積
46.45坪(153.554㎡)
賃料(共益費含)
300,000円 6,459円/坪
預託金
900,000円 19,376円/坪
入居可能日
即日
一括請求リスト

中広セントラルビル

お問い合わせ番号:010-41247

その他広島市内の中広セントラルビル 外観1
その他広島市内の中広セントラルビル 平面1
その他広島市内の中広セントラルビル 外観1
その他広島市内の中広セントラルビル 平面1
掲載面積10坪
住所
広島市西区中広町3-3-18
最寄駅
別院前駅(広島電鉄) 9分
横川駅(JR) 南口 10分
竣工
1974年 5月
規模
地上6階建
階数 面積 賃料(共益費含) 預託金 入居可能日 一括請求リスト
4階 10坪(33.058㎡) 82,500円8,250円/坪 375,000円37,500円/坪 即日
階数
4階
面積
10坪(33.058㎡)
賃料(共益費含)
82,500円 8,250円/坪
預託金
375,000円 37,500円/坪
入居可能日
即日
一括請求リスト

本川信愛ビル

お問い合わせ番号:010-41337

その他広島市内の本川信愛ビル 外観1
その他広島市内の本川信愛ビル 平面1
その他広島市内の本川信愛ビル 外観1
その他広島市内の本川信愛ビル 平面1
掲載面積192坪
住所
広島市中区十日市1-3-34
最寄駅
十日市町駅 ( 広島電鉄 ) 1分
県庁前駅 ( 広島高速交通アストラムライン ) 西1口 14分
本通駅 ( 広島高速交通アストラムライン ) 西1口 15分
竣工
1979年
規模
地上4階/地下1階建
階数 面積 賃料(共益費含) 預託金 入居可能日 一括請求リスト
3階 192.84坪(637.49㎡) 相談相談/坪 相談相談/坪 2026.06上旬
階数
3階
面積
192.84坪(637.49㎡)
賃料(共益費含)
相談 相談/坪
預託金
相談 相談/坪
入居可能日
2026.06上旬
一括請求リスト

広電楽々園駅ビル

お問い合わせ番号:010-05391

その他広島市内の広電楽々園駅ビル 外観1
その他広島市内の広電楽々園駅ビル 平面1
その他広島市内の広電楽々園駅ビル 外観1
その他広島市内の広電楽々園駅ビル 平面1
掲載面積18坪~30坪
住所
広島市佐伯区楽々園2-2-2
最寄駅
楽々園駅(広島電鉄宮島線) 1分
竣工
1986年 3月
規模
地上4階建
階数 面積 賃料(共益費含) 預託金 入居可能日 一括請求リスト
2階 18.25坪(60.331㎡) 149,650円8,200円/坪 1,314,000円72,000円/坪 即日
3階 30.42坪(100.562㎡) 249,444円8,200円/坪 2,190,240円72,000円/坪 即日
階数
2階
面積
18.25坪(60.331㎡)
賃料(共益費含)
149,650円 8,200円/坪
預託金
1,314,000円 72,000円/坪
入居可能日
即日
一括請求リスト
階数
3階
面積
30.42坪(100.562㎡)
賃料(共益費含)
249,444円 8,200円/坪
預託金
2,190,240円 72,000円/坪
入居可能日
即日
一括請求リスト

広島イーストビル

お問い合わせ番号:010-05410

その他広島市内の広島イーストビル 外観1
その他広島市内の広島イーストビル 平面1
その他広島市内の広島イーストビル 外観1
その他広島市内の広島イーストビル 平面1
掲載面積29坪~54坪
住所
広島市南区段原南1-3-53
最寄駅
段原一丁目駅(広島電鉄) 9分
竣工
1998年 4月
規模
地上19階/地下1階建
階数 面積 賃料(共益費含) 預託金 入居可能日 一括請求リスト
4階 29.92坪(98.91㎡) 相談相談/坪 相談相談/坪 2026.08上旬
5階 54.78坪(181.092㎡) 相談相談/坪 相談相談/坪 2026.05上旬
階数
4階
面積
29.92坪(98.91㎡)
賃料(共益費含)
相談 相談/坪
預託金
相談 相談/坪
入居可能日
2026.08上旬
一括請求リスト
階数
5階
面積
54.78坪(181.092㎡)
賃料(共益費含)
相談 相談/坪
預託金
相談 相談/坪
入居可能日
2026.05上旬
一括請求リスト

P-CUBE広島ビル

お問い合わせ番号:010-05660

その他広島市内のP-CUBE広島ビル 外観1
その他広島市内のP-CUBE広島ビル 平面1
その他広島市内のP-CUBE広島ビル 外観1
その他広島市内のP-CUBE広島ビル 平面1
掲載面積30坪~60坪
住所
広島市南区宇品海岸3-8-44
最寄駅
海岸通駅(広島電鉄) 1分
竣工
1988年 9月
規模
地上7階建
階数 面積 賃料(共益費含) 預託金 入居可能日 一括請求リスト
2階 30.21坪(99.868㎡) 317,205円10,500円/坪 1,268,820円42,000円/坪 即日
3階 60.42坪(199.736㎡) 634,410円10,500円/坪 2,537,640円42,000円/坪 即日
3階(案) 30.21坪(99.868㎡) 271,890円9,000円/坪 1,087,560円36,000円/坪 即日
3階(案) 30.21坪(99.868㎡) 271,890円9,000円/坪 1,087,560円36,000円/坪 即日
階数
2階
面積
30.21坪(99.868㎡)
賃料(共益費含)
317,205円 10,500円/坪
預託金
1,268,820円 42,000円/坪
入居可能日
即日
一括請求リスト
階数
3階
面積
60.42坪(199.736㎡)
賃料(共益費含)
634,410円 10,500円/坪
預託金
2,537,640円 42,000円/坪
入居可能日
即日
一括請求リスト
階数
3階(案)
面積
30.21坪(99.868㎡)
賃料(共益費含)
271,890円 9,000円/坪
預託金
1,087,560円 36,000円/坪
入居可能日
即日
一括請求リスト
階数
3階(案)
面積
30.21坪(99.868㎡)
賃料(共益費含)
271,890円 9,000円/坪
預託金
1,087,560円 36,000円/坪
入居可能日
即日
一括請求リスト

第7ウエノヤビル

お問い合わせ番号:010-06151

その他広島市内の第7ウエノヤビル 外観1
その他広島市内の第7ウエノヤビル 平面1
その他広島市内の第7ウエノヤビル 外観1
その他広島市内の第7ウエノヤビル 平面1
掲載面積19坪
住所
広島市中区本川町2-6-11
最寄駅
本川町駅(広島電鉄) 1分
県庁前駅(広島高速交通アストラムライン) 西1口 9分
本通駅(広島高速交通アストラムライン) 西1口 11分
竣工
1979年 3月
規模
地上9階建
階数 面積 賃料(共益費含) 預託金 入居可能日 一括請求リスト
5階 19.01坪(62.843㎡) 相談相談/坪 相談相談/坪 即日
階数
5階
面積
19.01坪(62.843㎡)
賃料(共益費含)
相談 相談/坪
預託金
相談 相談/坪
入居可能日
即日
一括請求リスト

舟入信愛ビル

お問い合わせ番号:010-06268

その他広島市内の舟入信愛ビル 外観1
その他広島市内の舟入信愛ビル 平面1
その他広島市内の舟入信愛ビル 外観1
その他広島市内の舟入信愛ビル 平面1
掲載面積71坪
住所
広島市中区舟入中町9-12
最寄駅
舟入本町駅(広島電鉄) 2分
竣工
1973年
規模
地上4階建
階数 面積 賃料(共益費含) 預託金 入居可能日 一括請求リスト
3階 71.07坪(234.943㎡) 相談相談/坪 相談相談/坪 入居日相談
階数
3階
面積
71.07坪(234.943㎡)
賃料(共益費含)
相談 相談/坪
預託金
相談 相談/坪
入居可能日
入居日相談
一括請求リスト

呉中通りビル

お問い合わせ番号:010-05305

呉市内の呉中通りビル 外観1
呉市内の呉中通りビル 平面1
呉市内の呉中通りビル 外観1
呉市内の呉中通りビル 平面1
掲載面積21坪~38坪
住所
呉市中通2-1-26
最寄駅
呉駅(JR) 8分
竣工
1988年 1月
規模
地上7階建
階数 面積 賃料(共益費含) 預託金 入居可能日 一括請求リスト
3階 30.33坪(100.265㎡) 151,650円5,000円/坪 454,950円15,000円/坪 即日
3階 38.68坪(127.868㎡) 193,400円5,000円/坪 580,200円15,000円/坪 即日
4階 21.2坪(70.083㎡) 106,000円5,000円/坪 318,000円15,000円/坪 2026.04上旬
階数
3階
面積
30.33坪(100.265㎡)
賃料(共益費含)
151,650円 5,000円/坪
預託金
454,950円 15,000円/坪
入居可能日
即日
一括請求リスト
階数
3階
面積
38.68坪(127.868㎡)
賃料(共益費含)
193,400円 5,000円/坪
預託金
580,200円 15,000円/坪
入居可能日
即日
一括請求リスト
階数
4階
面積
21.2坪(70.083㎡)
賃料(共益費含)
106,000円 5,000円/坪
預託金
318,000円 15,000円/坪
入居可能日
2026.04上旬
一括請求リスト

呉本通ビル

お問い合わせ番号:010-05361

呉市内の呉本通ビル 外観1
呉市内の呉本通ビル 平面1
呉市内の呉本通ビル 外観1
呉市内の呉本通ビル 平面1
掲載面積51坪
住所
呉市本通4-9-5
最寄駅
呉駅(JR) 17分
竣工
1992年 2月
規模
地上9階建
階数 面積 賃料(共益費含) 預託金 入居可能日 一括請求リスト
6階 51.19坪(169.224㎡) 相談相談/坪 相談相談/坪 入居日相談
階数
6階
面積
51.19坪(169.224㎡)
賃料(共益費含)
相談 相談/坪
預託金
相談 相談/坪
入居可能日
入居日相談
一括請求リスト

山陽第2ビル

お問い合わせ番号:010-40598

福山市内の山陽第2ビル 外観1
福山市内の山陽第2ビル 平面1
福山市内の山陽第2ビル 外観1
福山市内の山陽第2ビル 平面1
掲載面積33坪
住所
福山市三之丸町9-16
最寄駅
福山駅(JR) 南口 6分
竣工
1992年 3月
規模
地上6階建
階数 面積 賃料(共益費含) 預託金 入居可能日 一括請求リスト
5階 33.92坪(112.133㎡) 相談相談/坪 相談相談/坪 即日
階数
5階
面積
33.92坪(112.133㎡)
賃料(共益費含)
相談 相談/坪
預託金
相談 相談/坪
入居可能日
即日
一括請求リスト

福山東京海上日動ビルディング

お問い合わせ番号:010-05138

福山市内の福山東京海上日動ビルディング 外観1
福山市内の福山東京海上日動ビルディング 平面1
福山市内の福山東京海上日動ビルディング 外観1
福山市内の福山東京海上日動ビルディング 平面1
掲載面積15坪~66坪
住所
福山市紅葉町1-19
最寄駅
福山駅(JR) 南口 7分
竣工
1982年 6月(リニューアル:2013年 2月)
規模
地上8階/地下1階建
階数 面積 賃料(共益費含) 預託金 入居可能日 一括請求リスト
1階 66.28坪(219.108㎡) 相談相談/坪 相談相談/坪 即日
5階 15.93坪(52.661㎡) 相談相談/坪 相談相談/坪 即日
階数
1階
面積
66.28坪(219.108㎡)
賃料(共益費含)
相談 相談/坪
預託金
相談 相談/坪
入居可能日
即日
一括請求リスト
階数
5階
面積
15.93坪(52.661㎡)
賃料(共益費含)
相談 相談/坪
預託金
相談 相談/坪
入居可能日
即日
一括請求リスト
5
5

※募集フロアや面積、賃貸条件、設備等は状況により変更になる場合があります。
※(案)のフロアは分割または一括貸の面積例です。
※賃貸条件の上段は月額、下段は坪単価を表示します。
※賃料、共益費は別途消費税の対象となります。
※掲載写真や図面(パース含む)が現況と異なる場合は現況を優先します。
※ご成約時は規定の仲介手数料を申し受けます。

呉市から探す

福山市から探す

オフィス探しで
こんなお悩み
ありませんか?
  • 物件を探す時間が無い
  • なかなか良い物件が
    見つからない
  • プロ目線で物件を
    提案してほしい

約60,000棟の
登録物件の中から
オフィス仲介のプロが
理想のオフィス探しを
徹底サポートいたします。

チェックした物件を