0120-38-8127

受付時間:8:30〜17:30(土日祝日は除く)

河野ビルの建物情報

お問い合わせ番号:021-01367
河野ビル 外観1
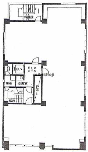
河野ビル 平面1
河野ビル 外観9
河野ビル 平面1
所在地
港区西新橋1-23-9
最寄駅
    虎ノ門駅(東京メトロ銀座線) 1番口 4分
    内幸町駅(都営三田線) A3口 5分
    新橋駅(JR) 烏森口 9分
竣工
1979年 7月
規模
地上8階/地下1階建
延床面積
470坪
基準階面積
53坪
駐車場設備
なし
エレベーター
あり 1基
空調設備
個別方式
基準天井高
2,350mm

河野ビルの公開募集区画

階数 面積 賃料(共益費含) 預託金 入居可能日 一括請求リスト
3階 53.54坪(176.993㎡) 803,100円15,000円/坪 5,139,840円96,000円/坪 即日
4階 53.39坪(176.497㎡) 800,850円15,000円/坪 5,125,440円96,000円/坪 即日
階数
3階
面積
53.54坪(176.993㎡)
賃料(共益費含)
803,100円 15,000円/坪
預託金
5,139,840円 96,000円/坪
入居可能日
即日
一括請求リスト
階数
4階
面積
53.39坪(176.497㎡)
賃料(共益費含)
800,850円 15,000円/坪
預託金
5,125,440円 96,000円/坪
入居可能日
即日
一括請求リスト

※募集フロアや面積、賃貸条件、設備等は状況により変更になる場合があります。
※(案)のフロアは分割または一括貸の面積例です。
※賃貸条件の上段は月額、下段は坪単価を表示します。
※賃料、共益費は別途消費税の対象となります。
※掲載写真や図面(パース含む)が現況と異なる場合は現況を優先します。
※ご成約時は規定の仲介手数料を申し受けます。

河野ビルの周辺地図

オフィス探しで
こんなお悩み
ありませんか?
  • 物件を探す時間が無い
  • なかなか良い物件が
    見つからない
  • プロ目線で物件を
    提案してほしい

約60,000棟の
登録物件の中から
オフィス仲介のプロが
理想のオフィス探しを
徹底サポートいたします。

チェックした物件を