0120-38-8127

受付時間:8:30〜17:30(土日祝日は除く)

天神町ビルの建物情報

お問い合わせ番号:021-87020
天神町ビル 外観1
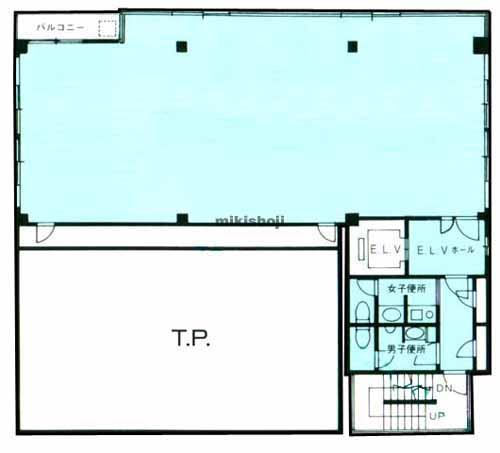
天神町ビル 平面1
天神町ビル 外観9
天神町ビル 平面1
所在地
八王子市天神町16-1
最寄駅
    八王子駅(JR) 北口 9分
    京王八王子駅(京王線) 3番口 13分
竣工
1991年 5月
規模
地上8階/地下1階建
延床面積
1,033坪
基準階面積
43坪
駐車場設備
あり
エレベーター
あり 1基
空調設備
個別方式

天神町ビルの公開募集区画

階数 面積 賃料(共益費含) 預託金 入居可能日 一括請求リスト
5階 43.55坪(143.968㎡) 365,000円8,382円/坪 1,050,000円24,111円/坪 即日
階数
5階
面積
43.55坪(143.968㎡)
賃料(共益費含)
365,000円 8,382円/坪
預託金
1,050,000円 24,111円/坪
入居可能日
即日
一括請求リスト

※募集フロアや面積、賃貸条件、設備等は状況により変更になる場合があります。
※(案)のフロアは分割または一括貸の面積例です。
※賃貸条件の上段は月額、下段は坪単価を表示します。
※賃料、共益費は別途消費税の対象となります。
※掲載写真や図面(パース含む)が現況と異なる場合は現況を優先します。
※ご成約時は規定の仲介手数料を申し受けます。

天神町ビルの周辺地図

オフィス探しで
こんなお悩み
ありませんか?
  • 物件を探す時間が無い
  • なかなか良い物件が
    見つからない
  • プロ目線で物件を
    提案してほしい

約60,000棟の
登録物件の中から
オフィス仲介のプロが
理想のオフィス探しを
徹底サポートいたします。

チェックした物件を