0120-534-011

受付時間:8:30〜17:30(土日祝日は除く)

東名グランドビルの建物情報

お問い合わせ番号:008-00539
東名グランドビル 外観1
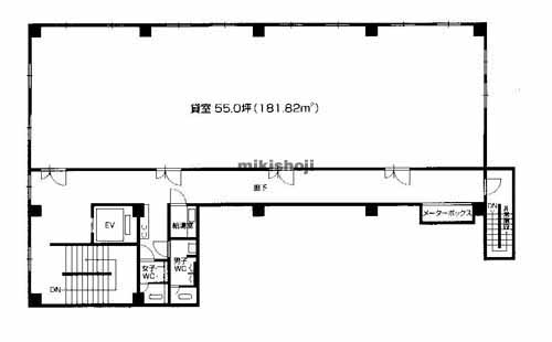
東名グランドビル 平面1
東名グランドビル 外観9
東名グランドビル 平面1
所在地
名古屋市名東区一社2-30
最寄駅
    一社駅(名古屋市営東山線) 2番口 5分
    上社駅(名古屋市営東山線) 4番口 12分
竣工
1974年 5月(リニューアル:2012年11月)
規模
地上9階建
延床面積
741坪
基準階面積
55坪
駐車場設備
あり 収容台数80台
エレベーター
あり 1基
空調設備
個別方式
基準天井高
2,500mm

東名グランドビルの公開募集区画

階数 面積 賃料(共益費含) 預託金 入居可能日 一括請求リスト
2階 50.5坪(166.943㎡) 499,950円9,900円/坪 2,393,700円47,400円/坪 即日
2階(案) 27坪(89.257㎡) 267,300円9,900円/坪 1,279,800円47,400円/坪 入居日相談
2階(案) 23.5坪(77.686㎡) 232,650円9,900円/坪 1,113,900円47,400円/坪 入居日相談
4階 27.5坪(90.91㎡) 272,250円9,900円/坪 1,303,500円47,400円/坪 即日
4階(案) 14坪(46.281㎡) 138,600円9,900円/坪 663,600円47,400円/坪 入居日相談
4階(案) 13.5坪(44.628㎡) 133,650円9,900円/坪 639,900円47,400円/坪 入居日相談
階数
2階
面積
50.5坪(166.943㎡)
賃料(共益費含)
499,950円 9,900円/坪
預託金
2,393,700円 47,400円/坪
入居可能日
即日
一括請求リスト
階数
2階(案)
面積
27坪(89.257㎡)
賃料(共益費含)
267,300円 9,900円/坪
預託金
1,279,800円 47,400円/坪
入居可能日
入居日相談
一括請求リスト
階数
2階(案)
面積
23.5坪(77.686㎡)
賃料(共益費含)
232,650円 9,900円/坪
預託金
1,113,900円 47,400円/坪
入居可能日
入居日相談
一括請求リスト
階数
4階
面積
27.5坪(90.91㎡)
賃料(共益費含)
272,250円 9,900円/坪
預託金
1,303,500円 47,400円/坪
入居可能日
即日
一括請求リスト
階数
4階(案)
面積
14坪(46.281㎡)
賃料(共益費含)
138,600円 9,900円/坪
預託金
663,600円 47,400円/坪
入居可能日
入居日相談
一括請求リスト
階数
4階(案)
面積
13.5坪(44.628㎡)
賃料(共益費含)
133,650円 9,900円/坪
預託金
639,900円 47,400円/坪
入居可能日
入居日相談
一括請求リスト

※募集フロアや面積、賃貸条件、設備等は状況により変更になる場合があります。
※(案)のフロアは分割または一括貸の面積例です。
※賃貸条件の上段は月額、下段は坪単価を表示します。
※賃料、共益費は別途消費税の対象となります。
※掲載写真や図面(パース含む)が現況と異なる場合は現況を優先します。
※ご成約時は規定の仲介手数料を申し受けます。

東名グランドビルの周辺地図

東名グランドビルのビル概要

名古屋市名東区一社2丁目に位置する、地上9階建てのオフィスビルです。地下鉄東山線一社駅から徒歩5分、広小路通(東名通)沿いの視認性が高い立地にあります。基準階面積155坪という名東区内では希少な広さを誇り、大規模な事務所ニーズに対応可能です。周辺は緑豊かな住環境と商業施設が融合しており、都心の喧騒を離れつつ地下鉄1本で名古屋駅・栄駅へアクセスできる、バランスの取れた就業環境を提供します。

オフィス探しで
こんなお悩み
ありませんか?
  • 物件を探す時間が無い
  • なかなか良い物件が
    見つからない
  • プロ目線で物件を
    提案してほしい

約60,000棟の
登録物件の中から
オフィス仲介のプロが
理想のオフィス探しを
徹底サポートいたします。

チェックした物件を