0120-38-8127

受付時間:8:30〜17:30(土日祝日は除く)

サンエース徳川の建物情報

お問い合わせ番号:008-00574
サンエース徳川 外観1
サンエース徳川 平面1
サンエース徳川 外観9
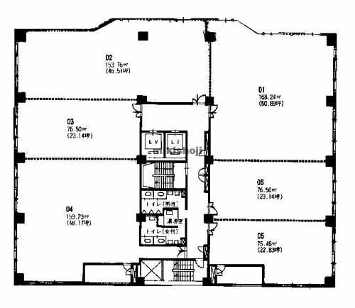
サンエース徳川 平面1
所在地
名古屋市東区徳川1-901
最寄駅
    森下駅(名鉄瀬戸線) 11分
    尼ヶ坂駅(名鉄瀬戸線) 13分
竣工
1990年 3月(リニューアル:2005年 1月)
規模
地上9階/地下1階建
延床面積
3,009坪
基準階面積
215坪
駐車場設備
あり 収容台数131台
エレベーター
あり 2基
空調設備
個別方式
基準天井高
2,550mm(OA高除く)
基準床荷重
300kg/㎡

サンエース徳川の公開募集区画

階数 面積 賃料(共益費含) 預託金 入居可能日 一括請求リスト
3階 48.14坪(159.141㎡) 385,120円8,000円/坪 1,877,460円39,000円/坪 即日
5階 23.14坪(76.496㎡) 196,690円8,500円/坪 971,880円42,000円/坪 2026.05上旬
階数
3階
面積
48.14坪(159.141㎡)
賃料(共益費含)
385,120円 8,000円/坪
預託金
1,877,460円 39,000円/坪
入居可能日
即日
一括請求リスト
階数
5階
面積
23.14坪(76.496㎡)
賃料(共益費含)
196,690円 8,500円/坪
預託金
971,880円 42,000円/坪
入居可能日
2026.05上旬
一括請求リスト

※募集フロアや面積、賃貸条件、設備等は状況により変更になる場合があります。
※(案)のフロアは分割または一括貸の面積例です。
※賃貸条件の上段は月額、下段は坪単価を表示します。
※賃料、共益費は別途消費税の対象となります。
※掲載写真や図面(パース含む)が現況と異なる場合は現況を優先します。
※ご成約時は規定の仲介手数料を申し受けます。

サンエース徳川の周辺地図

サンエース徳川のビル概要

サンエース徳川は、名古屋市東区徳川1丁目に所在する1990年3月竣工の賃貸オフィスビルです。名鉄瀬戸線森下駅から徒歩11分の距離にあり、地上9階、地下1階建て、基準階面積は約215坪、延床面積は約1,300坪の大規模な構成を誇ります。事務所移転において、東区の落ち着いた周辺環境と、200坪超の広々としたフロアプレートを活用した効率的な組織運用を可能にする仕様です。ビジネス拠点として安定した管理体制が整っており、テナント募集物件として、地域での円滑な事業展開を支える環境を提供します。

オフィス探しで
こんなお悩み
ありませんか?
  • 物件を探す時間が無い
  • なかなか良い物件が
    見つからない
  • プロ目線で物件を
    提案してほしい

約60,000棟の
登録物件の中から
オフィス仲介のプロが
理想のオフィス探しを
徹底サポートいたします。

チェックした物件を