0120-534-011

受付時間:8:30〜17:30(土日祝日は除く)

一宮駅前ビルディングの建物情報

お問い合わせ番号:008-10848
一宮駅前ビルディング 外観1
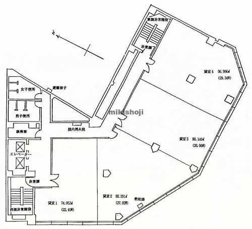
一宮駅前ビルディング 平面1
一宮駅前ビルディング 外観9
一宮駅前ビルディング 平面1
所在地
一宮市栄3-7-15
最寄駅
    名鉄一宮駅(名鉄名古屋本線・尾西線) 駐車場口 2分
    尾張一宮駅(JR) 東口 3分
    西一宮駅(名鉄尾西線) 13分
竣工
1973年 4月
規模
地上9階/地下1階建
延床面積
1,585坪
基準階面積
116坪
駐車場設備
なし
エレベーター
あり 2基
空調設備
セントラル方式
基準天井高
2,550mm

一宮駅前ビルディングの公開募集区画

階数 面積 賃料(共益費含) 預託金 入居可能日 一括請求リスト
7階 53.98坪(178.447㎡) 566,790円10,500円/坪 3,400,740円63,000円/坪 即日
7階(案) 27.92坪(92.298㎡) 相談相談/坪 相談相談/坪 入居日相談
7階(案) 26.06坪(86.149㎡) 相談相談/坪 相談相談/坪 入居日相談
階数
7階
面積
53.98坪(178.447㎡)
賃料(共益費含)
566,790円 10,500円/坪
預託金
3,400,740円 63,000円/坪
入居可能日
即日
一括請求リスト
階数
7階(案)
面積
27.92坪(92.298㎡)
賃料(共益費含)
相談 相談/坪
預託金
相談 相談/坪
入居可能日
入居日相談
一括請求リスト
階数
7階(案)
面積
26.06坪(86.149㎡)
賃料(共益費含)
相談 相談/坪
預託金
相談 相談/坪
入居可能日
入居日相談
一括請求リスト

※募集フロアや面積、賃貸条件、設備等は状況により変更になる場合があります。
※(案)のフロアは分割または一括貸の面積例です。
※賃貸条件の上段は月額、下段は坪単価を表示します。
※賃料、共益費は別途消費税の対象となります。
※掲載写真や図面(パース含む)が現況と異なる場合は現況を優先します。
※ご成約時は規定の仲介手数料を申し受けます。

一宮駅前ビルディングの周辺地図

オフィス探しで
こんなお悩み
ありませんか?
  • 物件を探す時間が無い
  • なかなか良い物件が
    見つからない
  • プロ目線で物件を
    提案してほしい

約60,000棟の
登録物件の中から
オフィス仲介のプロが
理想のオフィス探しを
徹底サポートいたします。

チェックした物件を