0120-38-8127

受付時間:8:30〜17:30(土日祝日は除く)

三晃丸の内ビルの建物情報

お問い合わせ番号:008-10906
三晃丸の内ビル 外観1
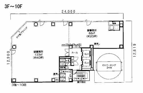
三晃丸の内ビル 平面1
三晃丸の内ビル 外観9
三晃丸の内ビル 平面1
所在地
名古屋市中区丸の内3-18-1
最寄駅
    久屋大通駅(名古屋市営桜通線・名城線) 2番口 3分
    栄駅(名古屋市営東山線・名城線) 2番口 8分
    栄町駅(名鉄瀬戸線) 10分
竣工
2002年10月
規模
地上10階/地下1階建
延床面積
926坪
基準階面積
60坪
駐車場設備
あり 収容台数34台
エレベーター
あり 2基
空調設備
個別方式
基準天井高
2,500mm

三晃丸の内ビルの公開募集区画

階数 面積 賃料(共益費含) 預託金 入居可能日 一括請求リスト
4階 18.14坪(59.967㎡) 253,960円14,000円/坪 1,596,320円88,000円/坪 即日
階数
4階
面積
18.14坪(59.967㎡)
賃料(共益費含)
253,960円 14,000円/坪
預託金
1,596,320円 88,000円/坪
入居可能日
即日
一括請求リスト

※募集フロアや面積、賃貸条件、設備等は状況により変更になる場合があります。
※(案)のフロアは分割または一括貸の面積例です。
※賃貸条件の上段は月額、下段は坪単価を表示します。
※賃料、共益費は別途消費税の対象となります。
※掲載写真や図面(パース含む)が現況と異なる場合は現況を優先します。
※ご成約時は規定の仲介手数料を申し受けます。

三晃丸の内ビルの周辺地図

三晃丸の内ビルのビル概要

三晃丸の内ビルは、名古屋市中区丸の内3丁目に所在する、2002年10月竣工の地上10階・地下1階建て賃貸オフィスビルです。久屋大通駅から徒歩3分、栄駅から徒歩8分、栄町駅から徒歩10分の位置にあり、複数路線が利用可能なビジネス拠点として機能します。延床面積926坪、基準階面積60坪のスペックを有し、事務所移転に際して丸の内エリアの利便性と信頼性を確保できる仕様です。現在のテナント募集物件として、新耐震基準に適合した堅実な構造と機能的なオフィス設備が整っています。久屋大通公園に近接した環境が、快適な執務スペースの構築を可能にします。

オフィス探しで
こんなお悩み
ありませんか?
  • 物件を探す時間が無い
  • なかなか良い物件が
    見つからない
  • プロ目線で物件を
    提案してほしい

約60,000棟の
登録物件の中から
オフィス仲介のプロが
理想のオフィス探しを
徹底サポートいたします。

チェックした物件を