林ビルの建物情報
お問い合わせ番号:008-40906
- 所在地
- 名古屋市熱田区新尾頭1-4-3
- 最寄駅
-
金山駅(JR) 南口 5分金山駅(名古屋市営名城線・名港線/名鉄名古屋本線) 南口 5分尾頭橋駅(JR) 12分
- 竣工
- 1983年 1月
- 規模
- 地上6階建
- 延床面積
- 0坪
- 基準階面積
- 0坪
- 駐車場設備
- あり
- エレベーター
- あり 1基
- 空調設備
- 個別方式
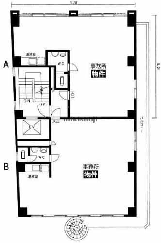
林ビルの公開募集区画
| 階数 | 面積 | 賃料(共益費含) | 預託金 | 入居可能日 | 一括請求リスト | |
|---|---|---|---|---|---|---|
| 2階 | 17.22坪(56.926㎡) | 140,910円8,184円/坪 | 362,730円21,065円/坪 | 即日 | ||
| 2階 | 18.64坪(61.62㎡) | 140,910円7,560円/坪 | 362,730円19,460円/坪 | 即日 | ||
※募集フロアや面積、賃貸条件、設備等は状況により変更になる場合があります。
※(案)のフロアは分割または一括貸の面積例です。
※賃貸条件の上段は月額、下段は坪単価を表示します。
※賃料、共益費は別途消費税の対象となります。
※掲載写真や図面(パース含む)が現況と異なる場合は現況を優先します。
※ご成約時は規定の仲介手数料を申し受けます。
林ビルの周辺地図
オフィス探しで
こんなお悩み
ありませんか?
-
物件を探す時間が無い
-
なかなか良い物件が見つからない
-
プロ目線で物件を提案してほしい
約60,000棟の登録物件の中から
オフィス仲介のプロが理想のオフィス探しを
徹底サポートいたします。
オフィス探しを依頼する
チェックした物件を