0120-38-8127

受付時間:8:30〜17:30(土日祝日は除く)

南国アネックスの建物情報

お問い合わせ番号:010-40439
南国アネックス 外観1
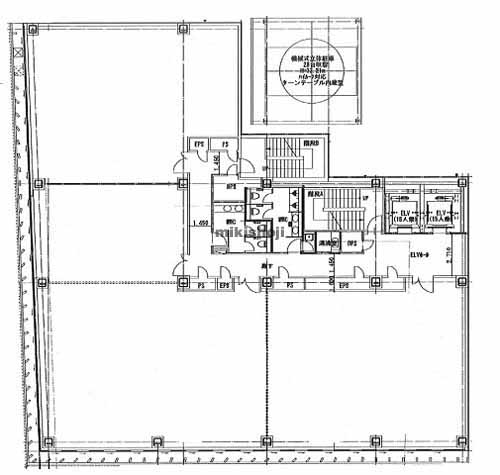
南国アネックス 平面1
南国アネックス 外観9
南国アネックス 平面1
所在地
鹿児島市中央町26-1
最寄駅
    都通駅(鹿児島市電2系統) 3分
    鹿児島中央駅前駅(鹿児島市電2系統) 4分
    鹿児島中央駅(JR) 桜島口(東口) 5分
竣工
2016年 3月
規模
地上7階建
延床面積
1,523坪
基準階面積
156坪
耐震
制震構造
駐車場設備
あり 収容台数32台
エレベーター
あり 2基
空調設備
個別方式
基準天井高
2,700mm

南国アネックスの公開募集区画

階数 面積 賃料(共益費含) 預託金 入居可能日 一括請求リスト
4階 50.48坪(166.877㎡) 相談相談/坪 相談相談/坪 即日
階数
4階
面積
50.48坪(166.877㎡)
賃料(共益費含)
相談 相談/坪
預託金
相談 相談/坪
入居可能日
即日
一括請求リスト

※募集フロアや面積、賃貸条件、設備等は状況により変更になる場合があります。
※(案)のフロアは分割または一括貸の面積例です。
※賃貸条件の上段は月額、下段は坪単価を表示します。
※賃料、共益費は別途消費税の対象となります。
※掲載写真や図面(パース含む)が現況と異なる場合は現況を優先します。
※ご成約時は規定の仲介手数料を申し受けます。

南国アネックスの周辺地図

オフィス探しで
こんなお悩み
ありませんか?
  • 物件を探す時間が無い
  • なかなか良い物件が
    見つからない
  • プロ目線で物件を
    提案してほしい

約60,000棟の
登録物件の中から
オフィス仲介のプロが
理想のオフィス探しを
徹底サポートいたします。

チェックした物件を