0120-534-011

受付時間:8:30〜17:30(土日祝日は除く)

三晃ビルの建物情報

お問い合わせ番号:001-01409
三晃ビル 外観1
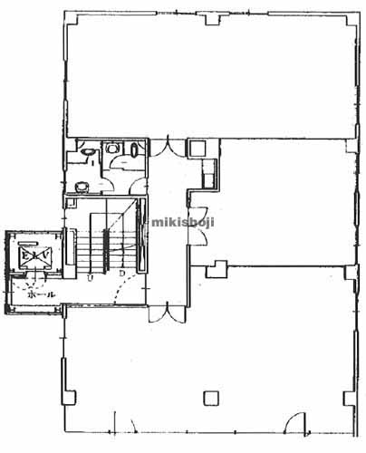
三晃ビル 平面1
三晃ビル 外観9
三晃ビル 平面1
所在地
札幌市白石区中央2条3-1-53
最寄駅
    東札幌駅(地下鉄東西線) 1番口 17分
    白石駅(地下鉄東西線) 1番口 20分
竣工
1976年11月
規模
地上4階建
延床面積
260坪
基準階面積
65坪
駐車場設備
あり 収容台数10台
エレベーター
あり 1基

三晃ビルの公開募集区画

階数 面積 賃料(共益費含) 預託金 入居可能日 一括請求リスト
2階 30坪(99.174㎡) 165,000円5,500円/坪 423,000円14,100円/坪 即日
階数
2階
面積
30坪(99.174㎡)
賃料(共益費含)
165,000円 5,500円/坪
預託金
423,000円 14,100円/坪
入居可能日
即日
一括請求リスト

※募集フロアや面積、賃貸条件、設備等は状況により変更になる場合があります。
※(案)のフロアは分割または一括貸の面積例です。
※賃貸条件の上段は月額、下段は坪単価を表示します。
※賃料、共益費は別途消費税の対象となります。
※掲載写真や図面(パース含む)が現況と異なる場合は現況を優先します。
※ご成約時は規定の仲介手数料を申し受けます。

三晃ビルの周辺地図

三晃ビルのビル概要

三晃ビルは、札幌市白石区中央2条に位置する1976年11月竣工の地上4階建てビルです。延床面積は約260平米、基準階面積は約65平米を有します。地下鉄東西線の東札幌駅から徒歩17分、白石駅からも徒歩20分の立地にあり、主要幹線道路に近いエリアに位置しています。事務所移転において、車移動を主軸とする営業活動や地域密着型の拠点運営に寄与する仕様です。テナント募集におけるスペックとして、落ち着いた周辺環境の中で独立性の高い事務所運営を可能にする環境が整っています。

オフィス探しで
こんなお悩み
ありませんか?
  • 物件を探す時間が無い
  • なかなか良い物件が
    見つからない
  • プロ目線で物件を
    提案してほしい

約60,000棟の
登録物件の中から
オフィス仲介のプロが
理想のオフィス探しを
徹底サポートいたします。

チェックした物件を